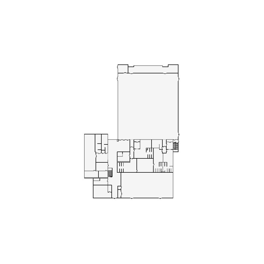
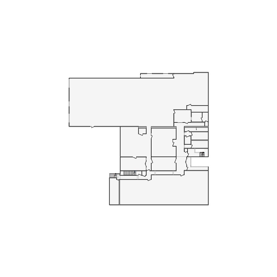
Xactimate Interior Sketch, Floor Plans (Matterport) – Up to 100,000+ sq ft
Professional Xactimate Sketches & Floor Plans
Precision-built for Adjusters and Contractors
$150
Up to 40,000 sq ft
- Residential, Commercial, Industrial
- Logic-Based Room Labeling
- High Level of Details & Accuracy
- Clean Topology & No Overlaps
- ESX File Delivery
- Standard 3 Days / Priority 2 Days Delivery
$165
40,000 – 70,000 sq ft
- Residential, Commercial, Industrial
- Logic-Based Room Labeling
- High Level of Details & Accuracy
- Clean Topology & No Overlaps
- ESX File Delivery
- Standard 4 Days / Priority 3 Days Delivery
$180
70,000 – 100,000+ sq ft
- Residential, Commercial, Industrial
- Logic-Based Room Labeling
- High Level of Details & Accuracy
- Clean Topology & No Overlaps
- ESX File Delivery
- Standard 5 Days / Priority 4 Days Delivery
Frequently Asked Questions
-
Which industry standards are followed for sketching?
Sketches follow US/Canada restoration standards. Accuracy is ensured by configuring wall thickness, ceilings, and openings strictly based on provided Matterport data or photos, eliminating guesswork for insurance adjusters.
-
How is the accuracy of the .ESX files ensured?
Geometry is drafted directly from source data. Each room undergoes verification for dimensions, ceiling heights, and opening placements to ensure 100% geometric consistency before the final .ESX file is generated.
-
How are rooms labeled in the sketch?
Rooms are labeled logically based on source data. Specific naming conventions (Logic-Based Labeling) can be applied upon request to match your estimate workflow perfectly.
-
What if revisions are needed?
Minor adjustments to labels, wall types, or openings are included. The goal is to deliver a native .ESX file that is 100% ready for import without further manual drafting.
-
How does the Express Delivery add-on work?
With the Rush Service add-on, your project is moved to the top of the production queue for immediate processing. This typically reduces the standard turnaround time by 50% or more, ensuring the fastest possible delivery for your specific project size.
-
Placement of Openings & Symbols
Placement of detailed elements (windows, doors, symbols) depends on the visibility and quality of the provided source data.
Related Solutions
Discover a full range of professional services designed to complement your Xactimate projects. From detailed reporting to expert estimation, we provide everything you need to close claims with confidence.
- Log In
- Sign Up

























































